Our Journey.

Premier Manufacturers and Suppliers of Quartz and Granite Counter tops.

Oceanic6 Solutionz stands as one of India's leading exporters, specializing in a diverse assortment of granite and quartz countertops for a global audience.

Our extensive range includes Calacatta Premium Quartz, Carrara Natura, Dessert Black Granite, and more.

We deliver ultra-trendy surfaces that meet the highest standards of quality and style for commercial and residential projects.

Read More
title-bg

About us

As a trusted Indian manufacturer and exporter, we've built our reputation on delivering exceptional natural stone and engineered surfaces to clients worldwide. What began as a commitment to quality craftsmanship has grown into comprehensive service that spans the entire supply chain—from material sourcing and custom fabrication to quality control and international logistics.


For our clients in the United States, we understand the unique demands of the American market. We offer competitive factory-direct pricing on premium granite and quartz countertops, custom cut-to-size services tailored to US standard dimensions, and reliable container shipping to major ports including New York, Los Angeles, Houston, and Miami. Our door-to-door delivery options simplify the import process, while our free sample program helps you make informed decisions before committing to large orders. Whether you're a contractor managing multiple residential projects, a dealer building your inventory, or a developer outfitting commercial properties, we provide the consistency, quality, and support you need to succeed.


Beyond North America, we serve clients across Europe, the Middle East, Asia-Pacific, and emerging markets worldwide. Our export-oriented approach means we understand international shipping regulations, can accommodate various measurement systems and specifications, and communicate effectively across time zones. From boutique design firms sourcing unique slabs to large-scale hospitality projects requiring thousands of square feet, we scale our services to match your project requirements while maintaining the same attention to detail and commitment to quality that defines our brand.


What sets us apart is our integrated approach. Unlike suppliers who simply sell slabs, we partner with you throughout the entire process—offering design consultation, custom fabrication, rigorous quality control, professional packaging, and comprehensive logistics support. We embrace the latest industry trends, including sustainable sourcing practices, trending colors, finishes, and innovative edge profiles that elevate design. Whether you need classic granite durability, contemporary quartz aesthetics, luxury quartzite elegance, or weather-resistant porcelain for outdoor applications, we deliver materials that combine timeless beauty with modern performance

title-bg

Our Products

We produce the following prducts with high standards of quality. Every unit is made with accuracy and dependability. You can know complete technical details and the features of each products. Please check all product details below.

Granite Slabs

Experience the natural elegance of granite - a high-quality stone that is widely known for its incredible longevity and attractive visual appeal. The natural patterns and colors of one earthy-toned slab can be completely different from another, so the chance is high that your installation will be totally unique. From designing a contemporary kitchen with stylish countertops to giving commercial areas a trendy look with eye-catching pieces, granite is the answer to both your aesthetic and practical needs. Its surface that is free from heat and scratch can be used in crowded places without any problem and therefore it is an ideal place for kitchen islands, floors, luxurious wall claddings, and other architectural features that will last for a long time.

Read More

Engineered Quartz

Discover the innovative engineered quartz that is a perfect blend of nature and technology. Made of natural quartz crystals that are combined with top-notch resins, these countertops not only attractwith their absolute color and pattern uniformity but also keep the resistance that you need for your everyday life. Unlike natural stone, quartz is a non-porous material, which makes it highly stain-resistant and bacteria-resistant without the need for sealing. Several homeowners decide on warm-toned quartz that features a little gold veining, while others opt for the marble-look designs that are characterized by bold movement patterns. Our range is from simple white quartz to elegant Calacatta-inspired slabs with rich veining and can be your next choice irrespective of the style of your home. Great for use in running kitchens, bathrooms designed to be relaxing, trendy vanities, and accent walls where a low-maintenance style is a must-have. .

Read More

Porcelain Slabs

Go beyond today with large-format porcelain slabs— a material that's not only technologically advanced but also visually appealing. Porcelain is made from pure clay and is fired at very high temperatures, which makes it incredibly versatile with very thin and large surfaces. These slabs are almost unbreakable— they are resistant to stains, heat, scratches, and UV rays, and even cold— so you can use them both inside and outside. Porcelain is becoming more and more popular as it can look like natural marble and stone but has better properties..

Read More
title-bg

CUSTOM PROJECTS

We have classified our project portfolio into two major categories, namely, Granite Projects and Quartz Projects. Thus, you can see these two sections side by side without any inconvenience. Each of these two groups is a gateway to several accomplished projects with the detailed pictures and the finishing quality. These galleries are the ways we show off our skills and the different designs we come up with. By visiting every section, you will be able to view all our successful projects in their entirety..

Granite Fabrication Projects

By using a blend of traditional craftsmanship and modern technology, we perform precision granite fabrication that makes your dream a reality. In fact, every project is materialized through the selection of the most fitting raw material, then guided by a computer, it is cut, and by the genius of the hand, it is finished to perfection. Our custom granite solutions are not limited to just kitchen countertops with waterfall edges but extend to commercial reception desks, bathroom vanity tops, and architectural installations made to the closest measurement. We are collaborating with architects, contractors, interior designers, and homeowners of the world and thus, providing them with exceptional quality from the initial design consultation to the final cut to size product.

Quartz Manufacturing Projects

We drive the production of custom-made surfaces for residential and commercial requirements through our engineered quartz manufacturing facility, which is compatible with the latest trends in design. Whether it is trending Calacatta-style slabs with the dramatic veining or solid-color contemporary quartz, we have a wide range that adjusts to the size of the project and the style preference. Every single one is checked thoroughly in the quality control department to assure that the color is even, the measurements are exact, and the surface is impeccable. We make cutting-to-size tops for the following: residential kitchen renovations, commercial hospitality projects, multi-unit developments, and the area of specialty where consistency and trust cannot be compromised.

title-bg

Our Services

Design & Planning

Design & Planning

Nice​‍​‌‍​‍‌​‍​‌‍​‍‌ kitchen countertops are a result of excellent planning. Our design team collaborates with you extensively in order to know your style preferences, practical needs, and money aspects. We suggest materials that best suit your life, draw up thorough floor plans with precise dimensions, and give you 3D renderings so that you can see the end product. In case you are working with your contractor or you are dealing directly with our team, we promise that we will take care of every detail before the production of your countertop, thus saving you from expensive unexpected problems and making you feel ​‍​‌‍​‍‌​‍​‌‍​‍‌pleased.

Read More
Custom Made

Custom Made

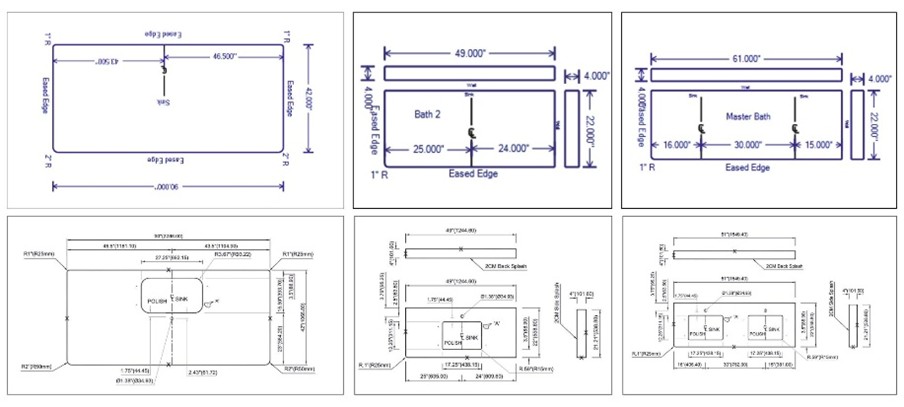
We provide you with the most customizable options that are made especially for your needs. You can take your pick from an extremely wide variety of colors, patterns, and finishes—like polished, and honed, leathered, and brushed textures. Indicate the thickness, edge profiles, cutouts for sinks and cooktops that you desire and even add extra parts like a built-in drainboard or a breakfast bar. Our state-of-the-art CNC machines are capable of achieving exact dimensions down to the millimeter, and at the same time, artisans with great skills hand-finish every single piece to the utmost perfection. So, what you get are the countertops that not only fit perfectly but also represent your unique ​‍​‌‍​‍‌​‍​‌‍​‍‌style .

Read More
Manufacturing

Manufacturing

Our ultra-modern production plant blends the accuracy of automation with the skill of a human being at every level. We go beyond the local standards by adhering to the international ones in every step from slab inspection, design using computer software, to cutting, edge profiling and polishing which are done by machines controlled by numerical codes. Every single item is checked, measured, and photographed before it is shipped from our warehouse. This is the way we guarantee that the thing you get is exactly what you have approved—there are neither compromises nor ​‍​‌‍​‍‌​‍​‌‍​‍‌surprises.

Read More
Quality Control

Quality Control

Every product goes through detailed quality control checking by our skilled QC team before it is allowed to be shipped. We measure the color of the product against the approved samples, check the product's thickness to make sure it is uniform throughout, look at the edges to make sure they are smooth and of the right length, and check for any natural variations or imperfections that may cause problems during the installation of the product. Only those materials which meet not only our tough criteria but also the international industry standards are given the green light. The thorough examination at different points of the product is a way to secure the money you have invested and to guarantee that you will be fully satisfied with your ​‍​‌‍​‍‌​‍​‌‍​‍‌delivery.

Read More
Packaging

Export-Grade Packaging

In order to transport your countertops from our place to your house in a safe manner, professional packaging suitable for international shipping is a must. To prevent damage, each slab or countertop piece is covered with a protective film, made safe with shock-absorbing materials, and firmly packed in specially made wooden crates reinforced to withstand the tough stages of sea freight, customs handling, and the final delivery. Besides that, we have water-proof covers to protect the products from water during the shipment and we also label the boxes with the instructions for handling and the details of the contents. Such a thorough packaging method lowers the risk of the damage, thus your investment will be there with you in a perfect state no matter how far the shipping ​‍​‌‍​‍‌​‍​‌‍​‍‌is.

Read More
Logistics

Logistics

We​‍​‌‍​‍‌​‍​‌‍​‍‌ manage the challenge of global logistics that is quite complicated so that you can keep things simple. Your entire shipping process is guided by our skilled shipping team—from factory pickup and containerization to customs documentation, freight forwarding, and final delivery to your specified location. We provide a range of transport options such as full container loads for large projects and consolidated shipments for smaller orders. We offer competitive freight rates and reliable transit times because we have established relationships with major ports worldwide. No matter the destination—whether it be the USA, Canada, Europe, or anywhere else—we take care of the delivery from our door to yours in a smooth and hassle-free manner. This includes the support for clearing customs and tracking the shipment in ​‍​‌‍​‍‌​‍​‌‍​‍‌real-time.

Read More
title-bg

Sample Program

Choosing the right materials is very important for a countertop project, that is the reason we have a complete sampling program. You will be provided with a professionally organized sample box with real material samples - not just pictures - in order to you assess the colors, patterns, textures, and finishes in your lighting conditions. This method allows you to decide which different stones you want to use in your space by checking how they look at different times of the day. Our samples come with the most popular choices as well as the most unique ones, and are supplemented with product specifications and care instructions to help you. .

Stone sample chips color selection countertop materials testing before ordering USA clients
Free granite quartz sample box stone material selection USA customer’s complimentary shipping
Customer testimonial praising the sample color and the sample boxes.
title-bg

Certificates & Accreditations

GST Registration Certificate

GST

Import Export Code (IEC)

RCMC

RCMC Certificate (CAPEXIL)

Self Sealing / Capaxil

Self Sealing Permission

IEC

Self Sealing Permission

Self Sealing / Capaxil

Why Choose Oceanic6 Solutionz?

Premium factory-direct stone solutions — consistent quality, competitive pricing, reliable global delivery.

Trusted by contractors & designers • 30–35 day lead times • Complimentary sample program

  • Direct-from-Factory Partnership: Work directly with the manufacturer, not intermediaries, ensuring better pricing and transparent communication.
  • Export-Grade Excellence: ASTM, EN, and ISO compliant materials with multiple inspection stages before shipment.
  • Single-Point Responsibility: One dedicated team handles your entire journey from concept to doorstep delivery.
  • Built for Your Vision: We don't limit you to stock inventory; each piece is manufactured specifically for your project requirements.
  • American Market Understanding: Years of experience serving US contractors and dealers with hands-on experience in multiple multifamily, senior living, town homes and commercial projects.
  • Predictable Project Timelines: 30-35 day delivery window with transparent tracking, so your schedule stays on track.
  • Try Before You Commit: Complimentary sample boxes delivered to evaluate materials in your actual space and lighting.
  • Technology-Driven Precision: State-of-the-art CNC machinery combined with skilled artisans for perfect execution.
  • Complete Product Portfolio: Source all your natural and engineered stone needs from one reliable partner.
  • Responsive Partnership Approach: Knowledgeable team available to answer questions and solve challenges quickly.
title-bg

Our Team

Meet our team, the people who make everything possible. Each member brings unique talent and hard work, helping us create strong results and memorable client experiences.

Deepak Bansal
Deepak Bansal

Managing Director & Founder

Preet Ahluwalia
Preet Ahluwalia

CEO & Founder

Sahil Gupta
Sahil Gupta

Manager Business Development

Anjali Duhan
Anjali Duhan

Operations Expert

Vaseem Ahmad
Harjeet Singh

CAD Designer

Harjeet Singh
Vaseem Ahmad

Quality Control Engineer

title-bg

What Our Clients Say

"We ordered custom kitchen countertops, and the entire experience was smooth and professional. The edges, cutouts, and finishing were done with precision. Highly reliable exporter for premium surfaces."

- Nick

"Our quartz countertops were delivered exactly as promised—perfect finishing, accurate sizes, and beautiful color consistency. The craftsmanship clearly stands out, and the installation team appreciated how precise every piece was."

- Bob

"Our hotel renovation required bulk quartz slabs, and every shipment arrived on time and in perfect condition. Consistency, durability, and excellent packaging—this company exceeded our expectations."

- Daniel
title-bg

Quality Credentials

At Oceanic6 Solutionz, discover exquisite granite and quartz countertops and Vanity Top at unbeatable prices.


We understand that purchasing high-quality countertops and Vanity Top online can be daunting, especially when balancing quality with budget. Many people feel hesitant to invest in upgrades, settling for less. That's where Oceanic6 Solutionz steps in, ensuring that everyone can find stunning options at India's premier online destination.


Our collection features a wide range of beautiful granite and quartz designs suitable for kitchens, bathrooms, and other spaces in your home. Trust us to provide the perfect balance of style and affordability, making it easy to elevate your decor with confidence! Reach out to Oceanic6 Solutionz and transform your home today!

icon
icon
icon
icon
icon
icon
icon
icon
icon
icon
title-bg

FAQ's

  • Granite is a natural stone, formed from cooled magma. It's highly durable, heat-resistant, and unique due to its natural patterns.
  • Quartz is an engineered stone made from natural quartz crystals mixed with resins and pigments, offering consistency in color and pattern.

Yes, both are highly durable. Granite is resistant to heat and scratches, while Quartz is scratch-resistant and non-porous, making it more resistant to stains.

Quartz is easier to maintain as it is non-porous, requiring less sealing and is more resistant to stains. Granite requires periodic sealing to prevent staining.

Yes! Both Granite and Quartz come in a wide range of colors and patterns. Quartz, in particular, offers more consistent designs, while Granite features unique natural variations.

Yes, we offer free samples of both Granite and Quartz countertops. Please contact us, and we'll be happy to send you a sample to help you make the best choice for your project.

To get an accurate estimate, simply provide us with your project details, including the measurements and any specific preferences you have. We’ll give you a quote based on the material, size, and complexity of the projects.

Yes, we offer door delivery services. Our experienced logistics team ensures that your cut-to-size countertops will be delivered safely to your doorstep. The estimated delivery time is approximately 40-45 days from the date of order confirmation.

Natural stone granite is unique, so there may be slight variations in colour and pattern from the sample you see. While we provide samples to give you a good representation, the final product may have subtle differences due to the natural characteristics of the stone.

Yes, we handle your shipment from factory to your door step which includes transportation, custom clearance, duties & trucking.

Yes, you can! We offer custom cut-to size countertops to fit your space. Just provide measurements, and we will help you in templating and fabrication.

Yes, the minimum order quantity is one 20ft container, applicable to both Granite and Quartz.

You can contact us via
Email: sales@oceanic6.com
Phone: +91 98101 13016
Fill out the “Get In Touch” Form
title-bg

CASE STUDIES

Outdoor Landscaping Project

Senior Living Housing Project - Custom Granite Countertops for 126 Residential Units

Read Case Study
Modern Kitchen Renovation

Professional Packaging Standards for Granite and Quartz Stone Products

Read Case Study
Luxury Spa Resort

Precision CAD Design Services - Converting Client Vision Into Production-Ready Shop Drawings

Read Case Study
title-bg

Our Blog

June 28 2025

Stone Finishes Explained: Polished, Honed & Leathered

Read More
June 16 2025

Exporting P White Granite Kitchen & Vanity Tops to the USA – Custom Designs Tailored to Client Needs

Read More
June 07 2025

The Journey of Polar White Quartz Cut to Size Tops: From Factory to Door Delivery

Read More
WhatsApp Icon Download Catalog