Case Study 1: Senior Living Housing Project

Senior Living Housing Project – Custom Granite Countertops for 126 Residential Units


Project at a Glance

Oceanic6 Solutionz teamed up with a top-tier sub-contractor in Ohio to provide the material and deliver the custom-fabricated China White granite countertops for a sizable senior living housing development.

The scope of the work included the countertops for kitchens, peninsulas, vanities, and common areas in 126 residential units with the specification of tight timelines and ready-for-installation conditions.

The project was finished on time, all the items were completely labeled, and the delivery was made with no defects—thus, fulfilling all the client’s expectations.


Technical Specifications
Project AspectDetails
Project NameChina White Cut-to-Size Installation
Project TypeMulti-Unit Senior Living Housing
LocationMiamisburg, Ohio, USA
MaterialChina White Granite (Natural Stone)
Surface FinishHigh-Polish with Eased Edge Profile
Thickness30mm (Kitchens), 20mm (Vanities)
Backsplash and Sidesplash Configuration4-inch Height
Sink InstallationUndermount Single Bowl
Total Square Footage6,845 sq. ft.
Number of Units126 Residential Units
Shipping Volume3 Full 20-foot Containers
Delivery TermsDDP (Door-to-Door Delivery)

Project Timeline & Execution

We were able to achieve this large-scale project in a mere 51 days from the time of approval to the final delivery due to our streamlined fabrication process.This efficiency is our result of the long way we've been through handling multi-unit residential installations.

PhaseProcess DetailsDuration
Design ApprovalCAD shop drawings created per specifications1–2 days
FabricationCutting, polishing, finishing, quality control, packaging15 days
ShippingOcean freight plus door delivery to job site36 days
Total DurationComplete project timeline starts to finish51 days

Client Requirements – Key Highlights
  • Seamless Peninsula Countertops: Granite precision-matched for clean, invisible seams.
  • Fast Production & Scheduled Delivery: The materials required exactly in harmony with the installation timelines.
  • Complete Door-to-Door (DDP) Shipping: The client wanted no involvement whatsoever in customs, freight, or trucking
  • Accurate Labeling for All 126 Units: Every piece had to be clearly labeled for the unit, room, and position in order to facilitate installation.

Material Selection & Sample Approval

Based on the client's cabinet finishes and the overall interior theme, our design team suggested appropriate color options. Material samples were made and sent for inspection to make sure the selected material was in line with the project vision. Only after the client's confirmation was the manufacture initiated.

Material Samples and Box
Granite Material Sample Close-up
China White Granite Close-up

Design & Engineering

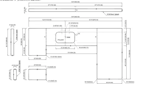
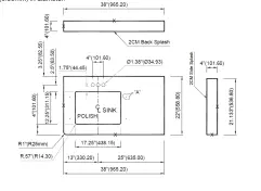
For each of the 126 units, our design team developed comprehensive CAD shop drawings illustrating the measurements, cutouts, and installation details These drawings were discussed with the client, and the green light was given before the fabrication to ensure that the installation would fit perfectly.

CAD Shop Drawing for Unit B Kitchen and Bathroom
Detailed CAD Drawing for Kitchen Countertop
Detailed CAD Drawing for Bathroom Vanity

Fabrication Excellence: From Quarry to Countertop

The fabrication involved precise cutting, polishing, and finishing as per the approved shop drawings. Every piece was carved to its exact size, including accurate sink cutouts, edges, and splashes.This resulted in a perfectly fitting and visually consistent set of countertops for all 126 units.

Granite Quarry Excavation
Cutting Granite Block into Slabs
Precision Slab Cutting with Laser
Finished Countertop Cutout

Comprehensive Quality Control Process

Every single item was subjected to multi-stage inspections, checking:

  • Dimension accuracy
  • Color and pattern consistency
  • Surface finish integrity
  • Sink and fixture positioning
  • Edge finishing

A full QC report along with photographs was given to the client before loading the goods.

Quality Control Inspection Report Page 1
Quality Control Measurement Checks

Packaging & Protection

Each countertop was packed with:

  • Foam-wrapping
  • Protective spacers
  • Fully reinforced wooden crates

A Detailed Labeling System ensured organized delivery

  • Project name
  • Crate number
  • Unit & room details
  • Handling labels
  • Waterproof documentation

This meticulous process ensured zero damage during long-distance transport.

Packaging Label and Manifest Example

Container Loading & Delivery

For safe and efficient handling: Crates were placed on 4-way forklifting pallets and weight distribution was meticulously planned. Load plans and pictures were sent to the client. DDP delivery made sure the client got everything right at their work location—without delays.

Container Loading Process Images

Project Results & Client Satisfaction
  • ✔ No defects or breakages
  • ✔ First-time flawless installation in all units
  • ✔ Invisible joints of peninsula countertops
  • ✔ Quick, efficient local finding and putting
  • ✔ Delivery on time, in spite of the pressure of a tight schedule
WhatsApp Icon